Sandy, UT 84093
| Property Facts | Property Features | Schools | 43 days on UtahRealEstate.com |
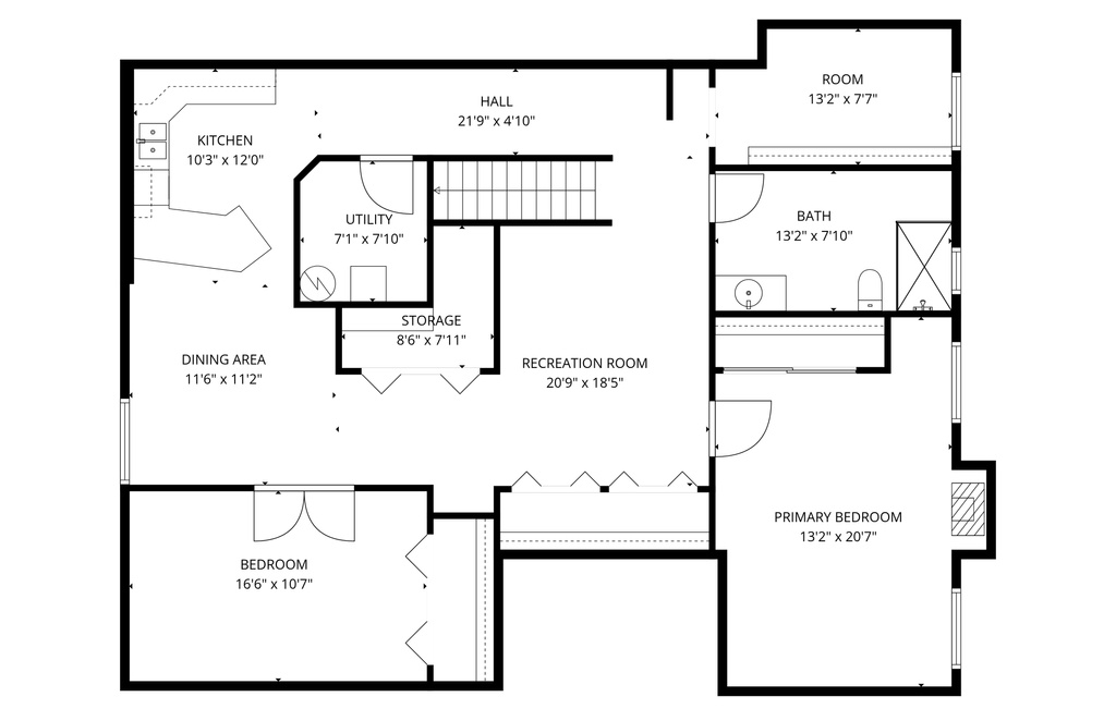
Experience unparalleled living in this exceptional two-story home, ideally situated on the high east side of Sandy in a highly sought-after neighborhood. This spacious residence sits on a generous lot, offering a wonderfully private backyard perfect for outdoor gatherings and everyday enjoyment. A three-car garage provides ample space for vehicles and storage, all while delivering stunning mountain views that envelop the home in natural beauty. Inside, the home showcases over 5,100 square feet of thoughtfully designed living space, featuring seven bedrooms and five bathrooms to accommodate family, guests, and flexible living arrangements. The fully finished basement adds valuable extra living area and includes a second kitchen, enhancing versatility for entertaining, multi-generational living, or rental opportunities. From the moment you step through the doors, you'll appreciate the well-appointed layout, abundant natural light, and high-quality craftsmanship throughout. This exceptional property combines space, privacy, and breathtaking mountain scenery in one of Sandy's most desirable locations. Don't miss the opportunity to make this remarkable home yours-schedule a showing today before it's gone.
View School Ratings by Utah Dept. of Education
| GreatSchools Rating | School Name | Grades | Distance |
|---|---|---|---|
9 |
Albion Middle School Public Middle School |
6-8 | 1.33 mi |
6 |
Oakdale School Public Elementary |
K-5 | 0.60 mi |
10 |
Peruvian Park School Public Elementary |
K-5 | 0.71 mi |
9 |
Silver Mesa School Public Elementary |
K-5 | 0.72 mi |
6 |
Brookwood School Public Elementary |
K-5 | 0.75 mi |
7 |
Beehive Science & Technology Academy Elementary Charter Elementary |
K-6 | 1.04 mi |
7 |
Beehive Science & Technology Academy (BSTA) Charter Middle School, High School |
6-12 | 1.04 mi |
5 |
Brighton High School Public Middle School, High School |
8-12 | 1.15 mi |
9 |
Quail Hollow School Public Elementary |
K-5 | 1.17 mi |
NR |
The Waterford School Private Preschool, Elementary, Middle School, High School |
PK-12 | 1.43 mi |
NR |
Grace Lutheran School Private Preschool, Elementary, Middle School |
PK-8 | 1.54 mi |
10 |
Willow Canyon Elementary School Public Elementary |
K-5 | 1.54 mi |
NR |
Blessed Sacrament School Private Preschool, Elementary, Middle School |
PK-8 | 1.56 mi |
9 |
Butler Middle School Public Middle School |
6-8 | 1.57 mi |
8 |
Ridgecrest School Public Elementary |
K-5 | 1.61 mi |
Nearby Schools data provided by GreatSchools.
For information about radon testing for homes in the state of Utah click here.
This 7 bedroom, 5 bathroom home is located at 1990 E Terra Vista Way in Sandy, UT. Built in 1981, the house sits on a 0.22 acre lot of land and is currently for sale at $1,095,000. This home is located in Salt Lake County and schools near this property include Oakdale Elementary School, Albion Middle School, Hillcrest High School and is located in the Canyons School District.
Search more homes for sale in Sandy, UT.

Every purchaser of any interest in residential real property on which a residential dwelling was built prior to 1978 is notified that such property may present exposure to lead from lead-based paint that may place young children at risk of developing lead poisoning. Lead poisoning in young children may produce permanent neurological damage, including learning disabilities, reduced intelligence quotient, behavioral problems, and impaired memory. Lead poisoning also poses a particular risk to pregnant women. The seller of any interest in residential real property is required to provide the buyer with any information on lead-based paint hazards from risk assessments or inspections in the seller's possession and notify the buyer of any known lead-based paint hazards. A risk assessment or inspection for possible lead-based paint hazards is recommended prior to purchase.
UtahRealEstate.com is where real estate listings originate, and it is the most used property information platform for real estate professionals in the state of Utah. UtahRealEstate.com offers you the most complete and current property information available.