Property Facts

Days on URE 156
Status ACTIVE
MLS# 2116029
Type Single Family
Style Rambler/Ranch
Year Built 2026

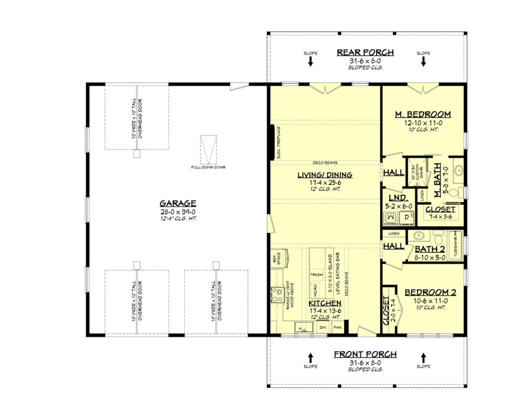
This barndominium blends modern comfort with simple charm, designed for both everyday living and entertaining. It features two bedrooms, two full baths, an oversized garage, and a laundry room. The heart of the home is an open-concept living, dining, and kitchen area with 12-foot ceilings, an electric fireplace, and large windows that open to spacious front and rear porches-ideal for gatherings or relaxing outdoors. The kitchen includes a central island for casual dining, while the main suite offers a walk-in closet and a custom shower in the en suite bath. Option to add a basement! This floor plan can be customized!

Property Features

HOA Information

Exterior Features

Other Features

Included in Transaction

Property Size

Floor Details

Mortgage Calculator

Schools

Designated Schools

Elementary School Parkview
Middle School Diamond Fork
High School Maple Mountain
School District Nebo

Nearby Schools

Nearby Schools data provided by GreatSchools.

For information about radon testing for homes in the state of Utah click here.

This 3 bedroom, 2 bathroom home is located at 5248 Cougar Run in Birdseye, UT. Built in 2026, the house sits on a 0.51 acre lot of land and is currently for sale at $595,000. This home is located in Utah County and schools near this property include Parkview Elementary School, Diamond Fork Middle School, Maple Mountain High School and is located in the Nebo School District.

Search more homes for sale in Birdseye, UT.

Contact Agent

Clay  Winder
Clay Winder
801-358-0970

Sending Feedback...

Listing Broker

KW WESTFIELD  Company Logo
KW WESTFIELD
998 N 1200 W
Orem, UT 84057
801-850-5600
Advertisement
Advertisement

UtahRealEstate.com is where real estate listings originate, and it is the most used property information platform for real estate professionals in the state of Utah. UtahRealEstate.com offers you the most complete and current property information available.

Find Utah Homes for Sale by City
Advertisement
Find Homes for Sale in Utah by Zip Code